Mazda 3 manuals

Mazda 3 Service Manual: Oil Pan Removal/Installation [Mzr 2.0, Mzr 2.5]

Mazda 3 Service Manual / Engine / Lubrication / Oil Pan Removal/Installation [Mzr 2.0, Mzr 2.5]

WARNING:

NOTE:

1. Remove the battery, battery tray and PCM component..

2. Remove the air cleaner and air hose..

3. Remove the aerodynamic under cover No.2..

4. Drain the engine oil..

5. Remove the A/C drive belt. (MZR 2.0).

6. Remove the A/C compressor with the pipes still connected. (MZR 2.0).

7. Remove the ATF oil cooler with the water hose and ATF oil cooler hose still connected. (ATX).

8. Remove in the order indicated in the table.

9. Install in the reverse order of removal.

10. Refill with the specified type and amount of the engine oil..

11. Start the engine and confirm that there is no oil leakage.

12. Inspect the oil level..

MZR 2.0


MZR 2.5



1

Oil pan

(See Oil Pan Removal Note.)

(See Oil Pan Installation Note.)


Oil Pan Removal Note

1. Set the wiring harness, harness bracket, shift cable and cable bracket out of the way to access the transaxle upper fitting bolts.

NOTE:

2. Before loosening the bolts securing the engine and transaxle, put a mark on each transaxle bolt and the transaxle (to determine when they have been turned one full turn), then loosen the bolts one full turn (360 °

).


CAUTION:

NOTE:

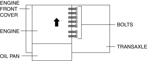
3. Remove the four bolts that secure the engine front cover to the oil pan.


4. Remove the oil pan using a separator tool.


Oil Pan Installation Note

CAUTION:

  1. Do not allow the gasket residue to enter the oil pan. Using cleaning fluid, completely remove the oil from the joint. Especially be sure to completely remove oil and gasket residue from the corner section of the engine front cover and the cylinder block.


  2. Apply the silicon sealant in a single, unbroken line.

  3. Install the oil pan before the applied sealant starts to harden.

  4. Using bolts with the old seal adhering could cause cracks in the cylinder block.


NOTE:

1. Completely clean and remove any oil, dirt, sealant or other foreign material that may be adhering to the cylinder block, engine front cover and oil pan.

2. When reusing the oil pan installation bolts, clean any old sealant from the bolts.

3. Apply silicone sealant to the oil pan along the inside of the bolt holes as shown in the figure.


    Thickness

  1. 2.2—3.2 mm {0.09—0.12 in}

4. Apply silicone sealant to the front edge of the oil pan and to the engine front cover where the two pieces attach together.


5. Apply an ample amount to the engine front cover where the oil pan is fitted, and also apply an extra amount (a ball of approximately 5 mm {0.2 in}

in diameter) of silicone sealant to the corners of the engine front cover and the cylinder block.

6. Install the oil pan to the cylinder block.

7. Tighten the four engine front cover bolts in the order shown in the figure.


8. Tighten the oil pan bolts in the order shown in the figure.


    Tightening torque

  1. 17—23 N·m {1.8—2.3 kgf·m, 13—16 ft·lbf}

9. Tighten all the bolts securing the engine and transaxle.


NOTE:

Oil Filter Replacement [Mzr 2.0, Mzr 2.5]
WARNING: Hot engines and engine oil can cause severe burns. Turn off the engine and wait until it and the engine oil have cooled. A vehicle that is lifted but not securely supported ...

Oil Pressure Inspection [Mzr 2.0, Mzr 2.5]
WARNING: Hot engines and engine oil can cause severe burns. Turn off the engine and wait until it and the engine oil have cooled. A vehicle that is lifted but not securely supported ...

Other materials:

Windshield Wiper Motor Inspection
1. Disconnect the negative battery cable.. 2. Remove the following parts: a. Windshield wiper arm and blade. b. Front fender molding. c. Cowl grille. d. Center cowl grille No.1, No.2 3. Disconnect windshield wiper motor connector. 4. Connect the battery positive voltage to windshield w ...

Intake Air Temperature (Iat) Sensor Inspection [Mzr 2.0, Mzr 2.5]
Resistance Inspection NOTE: Because the IAT sensor is integrated in the MAF sensor, replacing the IAT sensor includes replacement of the MAF/IAT sensor. 1. Remove the battery cover.. 2. Disconnect the negative battery cable.. 3. Disconnect the MAF/IAT sensor connector. 4. Mea ...

Blind Spot Monitoring (BSM) System
The Blind Spot Monitoring (BSM) system is designed to assist the driver in checking the area to the rear of the vehicle on both sides during lane changes by alerting the driver to the presence of vehicles approaching from the rear in an adjacent lane. The Blind Spot Monitoring (BSM) system ...

© 2016-2025 Copyright www.mazda3tech.com